15 oficinas en venta en Veracruz

Las Américas, Boca del Río
Oficina en venta
$12,000,000 MXN
Excelente Oficina Ubicada en la Torre 1519 edificio de 19 niveles cuenta con 10 cajones de estacionamiento, centro de negocios mas moderno del sureste, ubicado estratégicamente en Boca del Río, Veracruz, con vista al mar y la ciudad. El Edificio cuenta con sistemas video vigilancia en todo el edificio, lobby, restaurante y bar panorámico en piso 19, 3 elevadores panorámicos, 1 elevador de servicio, roof garden, red contra incendio, control automático de acceso a estacionamiento, troncal de telefonía y servicios periféricos. . La mitad de la superficie se entrega en obra gris para adaptaciones según gustos y necesidades. . . Actualmente la torre es ocupada casi al 50% por las oficinas del SAT de Veracruz, lo cual la hace tener mayores protocolos de seguridad.

Las Américas, Boca del Río
Oficina en venta
$2,800,000 MXN
Ref: NEX-6512
Hermosas oficinas en venta en el mejor centro de negocios de Boca del Río Veracruz, ciudad con más crecimiento y proyección del estado. Excelentes vías de acceso como Blvd. Adolfo Ruiz Cortines, centros comerciales, bancos. Libérate del estrés ven a trabajar con la tranquilidad que la vista al mar te puede dar, te ofrecemos las mejores oficinas de 103 m2, ubicada en Torre 1519 un edificio de 20 niveles, 4 pisos de estacionamiento, 4 elevadores 3 de ellos panorámicos, área de bar y terraza con vista a la bahía en su piso 20, recepción de primer nivel, excelente ubicación, accesos controlados, seguridad privada y circuito cerrado. Con la posibilidad de acondicionar sus espacios de acuerdo a su imagen corporativa.Contáctame para agendar una cita y continúes con tus proyectos en zona de gran plusvalía.
NEXIMOINMOBILIARIADIGITAL

Ignacio Zaragoza, Veracruz
Oficina en venta
$5,500,000 MXN
CONTACTANOS Y HAZ UNA CITA PARA CONOCER MAS SOBRE ESTA PROPIEDAD O ALGUNA OTRA, E-MAIL: ventas.costadeoro.mx .Excelente oficina ubicada en la Avenida 20 de noviembre una de las vías de más flujo vehicular, ideal para comercio, oficina, con amplios espacios y en buen estado, estacionamiento para mas de 6 autos, zona comercial. Cuenta con 555 metros de terreno.

Puerto México, Coatzacoalcos
Oficina en venta
$2,500,000 MXN
Ref: NEX-28048
Excelente oportunidad para invertir en este edificio con oficinas, con una ubicación inmejorable cerca de Malecón costero, que te conecta con prácticamente a toda la ciudad, se localiza a tan solo 10 minutos del centro y a 10 minutos de centros comerciales como Plaza Forum, Plaza Cristal y Plaza Acaya, haciendo las distancias más cortas.Éstas oficinas tienen una muy buena tanto en planta baja y en planta alta, ideal para una empresa corporativa, o centro de negocio, o tambien podrá ser modificado para un complejo de departamentos, por la ubicación cerca del Malecón.La propiedad cuenta con toda la documentación en regla y al corriente en sus pagos.***PRECIO TRATABLE Y NEGOCIABLE***Acércate a nuestro asesor para agendar una visita y pueda apreciar muy bien sus espacios.
NEXIMOINMOBILIARIADIGITAL

Siglo XXI, Veracruz
Oficina en venta
$7,800,000 MXN
Ref: NEX-4765
DIRECCIÓN PRINCIPALADMINISTRACIÓN RECEPCIÓN10 SALONES13 MEDIOS BAÑOS PARA NIÑOS4 MEDIOS BAÑOS PARA ADULTOSMUEBLES DE CAOBA EMPOTRADOS EN LOS SALONESPATIO TECHADO CON CIRCUITO CERRADO DE TVCIRCUITO DE RESBALADILLA CON ESCALADA DE FIBRA DE VIDRIOÁREA VERDE CON JUEGOS Y CERCA METÁLICO4 MEDIOS BAÑOS PARA ADULTOSCOCINA CON CLIMABODEGAGRADASRAMPA Y ESCALERASTRANSFORMADOR DE ENERGÍA PROPIOÁREA TECHADA CON PASTO ARTIFICIAL PARA USOS MÚLTIPLESSISTEMA DE ALARMA ADTESCANER CHECADOR DIGITAL PARA EMPLEADOS
NEXIMOINMOBILIARIADIGITAL

Boca del Río Centro, Boca del Río
Oficina en venta
$1,700,000 MXN
Ref: NEX-6155
En Exertia creamos espacios que fomentan la colaboración e integración entre empresas y profesionistas. Con espacios diseñados para cumplir las necesidades de tu empresa, aquí encontrarás el lugar ideal para tu patrimonio. Ubicado en una zona de alto crecimiento de Veracruz, te damos la bienvenida a la nueva capital de negocios de la ciudad. Sus rápidos accesos a vías de comunicación importantes, así como el encontrarse en una zona altamente equipada la convierten en un centro digno de las altas metrópolis de negocios. Torre de 33 niveles, motor lobby, 209 oficinas a partir del nivel 7, baños de hombres y mujeres en cada piso, en su planta baja Recepción Ejecutiva, 4 salas privadas de juntas con diferentes capacidades, en su nivel 6 área de comedor, Snack bar, terraza, elevadores de alta velocidad, seguridad 24/7, circuito cerrado.Preventa Exclusiva, ofrecemos beneficios para las empresas y sus profesionistas, creando un ambiente de bienestar y seguridad, contáctame y empieza a diseñar tu espacio empresarial.
NEXIMOINMOBILIARIADIGITAL

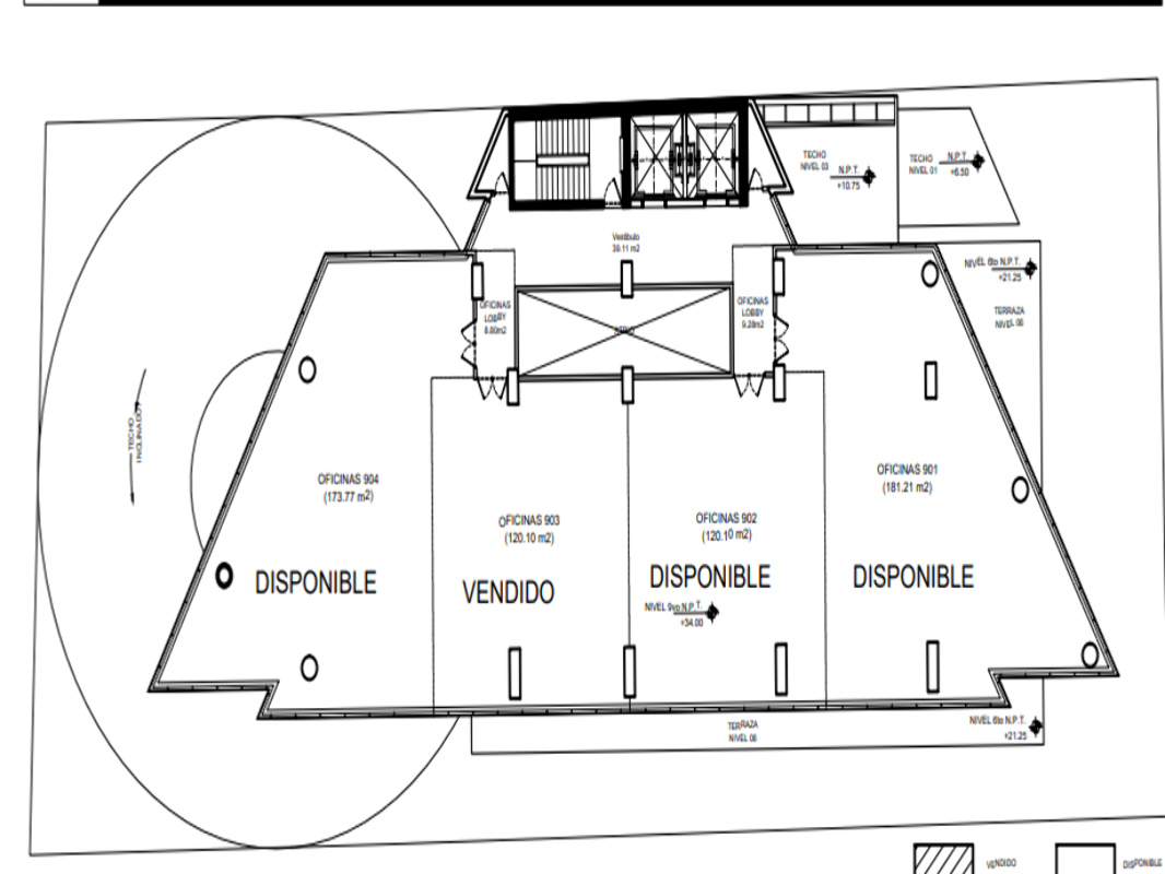
Jardines de Mocambo, Boca del Río
Oficina en venta
$3,682,000 MXN
Diferente disponibilidad en superficies y precios en pisos 6, 7 y 9...NIVEL 6 (Venta).Oficina 604-A superficie 118.00 m2 $ 3,682,000.00 más I.V.A., 1 Cajón de Estacionamiento: (13.50 m2).Oficina 604-B superficie 100.00 m2 $ 3,178,000.00 más I.V.A.,1 Cajón de Estacionamiento: (13.50 m2). Terraza superficie 101.76.00 m2, $ 966,720.00 más I.V.A..Cuota Mantenimiento Mensual $ 35.00 m2.(Áreas Comunes)..Obra Gris....NIVEL 7 (VENTA) 152.00 m2.Oficina 701 superficie 125.00 m2 1 Cajón de Estacionamiento: (27.00 m2) 1/1G. opcion.$ 4,256,000.00 más I.V.A..Obra Gris..Cuota Mantenimiento Mensual $ 35.00 m2.(Áreas Comunes). ...NIVEL 9 (Venta) 208.21 m2..Oficina 901 superficie Sup. 181.21 m2 X $ 27,000.00 $ 4,892,670.00 I.V.A..Cajón de Estacionamiento: 2 (13.50 m2) Sup. 27.00 m2 X $ 25,000.00, $ 675,000.00 I.V.A.TOTAL $ 5,567,670.00.Obras Gris..Ductos de Instalación Eléctrica y Climas a la entrada de la Oficina..Mantenimiento de Áreas Común $ 35.00 el m2

Veracruz Centro, Veracruz
Oficina en venta
$1,490,000 MXN
Propiedad en venta ideal para oficinas, consultorios o escuela, ubicada a un minuto del centro del Puerto de Veracruz, distribuida de la siguiente manera:.Planta baja: El frente independiente con área de sala, comedor una habitación y pequeño patio, en la parte de atrás cuenta con un patio amplio y dos privados con un baño compartido y cocineta..Planta alta: Entrada independiente con 3 privados uno con baño completo, con salida a balcón..Estamos a sus ordenes.

Jardines de Virginia, Boca del Río
Oficina en venta
$2,000,000 MXN
Ref: NEX-6349
Diseña tu propio espacio y disfruta el privilegio de trabajar con estilo. Contamos con ubicación privilegiada, en un punto estratégico de la zona conurbada de Boca del Río, Veracruz, con fáciles accesos de vías de comunicación como Avenida Urano, Boulevar Adolfo Ruiz Cortines, zona hotelera, universidades, centros comerciales, parques, restaurantes.El edificio cuenta con 35 oficinas en 7 niveles, estacionamiento de mas de 600 m2, 2 elevadores, circuito cerrado de televisión, terraza panorámica, área comercial, contamos con oficinas desde 90 m2 y hasta 700 m2 por piso.Adquiere hoy una de nuestras exclusivas oficinas y diseña tu propio espacio, contáctame.
NEXIMOINMOBILIARIADIGITAL

Boca del Río Centro, Boca del Río
Oficina en venta
$5,000,000 MXN
Ref: NEX-6609
Atención, empresarios, abogados, doctores, tenemos en venta una lujosa oficina en uno de los mejores desarrollos de gran crecimiento aquí en Costa de Oro Veracruz, si estás pensando en un lugar para trabajar con tranquilidad, libre de estres y a una cuadra del mar, esta oficina es justo lo que necesitas. Se encuentra en una zona privilegiada con acabados de lujo, muy cerca de centros comerciales, plazas, escuelas, servicios, hospitales, bancos, acceso por una de las avenidas más importantes como lo es Blvd. Adolfo Ruiz Cortines, cuenta con 6 áreas, recepción, sala de espera, 4 baños, 2 elevadores panorámicos, además si tu idea es poner un consultorio y atender a tus pacientes como ellos se merecen tiene un área de quirófano.Ven a conocerlo, contáctame te daré más detalles.
NEXIMOINMOBILIARIADIGITAL

Las Américas, Boca del Río
Oficina en venta
$3,800,000 MXN
Ref: NEX-6594
Lujosa oficina en renta ubicada en Edificio Corporativo de Primer nivel. Adquiere estatus en la mejor y mas moderna zona de Veracruz. Torre 1519 es un edificio con una ubicación privilegiada una excelente opción de espacios para oficinas a la vanguardia en instalaciones y seguridad, el edificio consta de 19 niveles y 4 pisos de estacionamiento techado con 3 elevadores panorámicos y 1 de servicio. Excelentes acabados y diseño, área de recepción, sala de espera, en planta baja. La oficina tiene un espacio 140 m2 con un área de trabajo para 10 personas, 3 privados, privado principal con baño, excelente vista al mar y a la ciudad. Uso de salas de juntas, área para servidor, área para café y baño común, climatizada, persianas instaladas e iluminación decorativa.Contáctame para agendar una cita y continúes con tus proyectos en zona de gran plusvalía.
NEXIMOINMOBILIARIADIGITAL

Jardines de Virginia, Boca del Río
Oficina en venta
$2,095,680 MXN
Ref: NEX-6388
Diseña tu propio espacio y disfruta el privilegio de trabajar con estilo. Contamos con ubicación privilegiada, en un punto estratégico de la zona conurbada de Boca del Río, Veracruz, con fáciles accesos de vías de comunicación como Avenida Urano, Boulevar Adolfo Ruiz Cortines, zona hotelera, universidades, centros comerciales, parques, restaurantes.El edificio cuenta con 35 oficinas en 7 niveles, estacionamiento de mas de 600 m2, 2 elevadores, circuito cerrado de televisión, terraza panorámica, área comercial.Oficina ubicada dentro del Corporativo U35, con una excelente orientación haciéndola muy fresca y luminosa con ventilación natural, en el sexto nivel con acceso directo a la terraza del edificio, cuenta con 100.63 m2 de área privativa y 16.50 de estacionamiento.El concepto exclusivo del edificio la hacen ser una excelente opción por seguridad y accesibilidad al estacionamiento y elevadores sin saturación. Ven a conocerla, contáctame.
NEXIMOINMOBILIARIADIGITAL

Reforma, Veracruz
Oficina en venta
$3,100,000 MXN
Ref: NEX-4195
Propiedad ideal para oficina en el Fraccionamiento Reforma, con excelente imagen, acabados de lujo, con un diseño arquitectónico pensado para contar con luz y ventilación natural. Ubicada en medio de la zona conurbada de Veracruz y Boca del Río, cerca de avenidas como Cristóbal Colón, La Fragua, Bolívar, Díaz Mirón y cerca de escuelas universidades, hospitales, bancos y otros servicios. Una ubicación estratégica entre las principales avenidas que conectan la ciudad. La propiedad cuenta con la siguiente distribución: Área para recepción y sala de espera Área de trabajo o sala de juntas Tres privados climatizados, el privado principal es amplio y cuenta con baño privadoDos baños y medio Dos terrazasUn cajón de estacionamiento con portón eléctricoDelfino 1 No. 446 (Oficina)Construcción: 202.15 M2Terreno: 128.45 M2Precio: 3,100,000.00Nota: Tiene alarma instalada con monitoreo inalámbrico, cámaras de circuito cerrado, site de servidor, Swicht, cableado de datos Cat. 6 y Cableado de voz.Contacta al asesor y recibe mayor información sobre el que podría ser tu nuevo lugar de trabajo.
NEXIMOINMOBILIARIADIGITAL

Costa de Oro, Boca del Río
Oficina en venta
$2,750,000 MXN
Ref: NEX-14805
VENTA – OFICINAS RUIZ CORTINES EN AVENIDA RUIZ CORTINES, FRACC COSTA DE ORO, BOCA DEL RIO VER,DISPONIBILIDAD INMEDIATA, EDIFICIO NUEVO.SE ACEPTAN CREDITOS Y DE CONTADO.DE 150 mt2, DISPONIBLES PISO 2 Y 3. ESTACIONAMIENTO AL FRENTE DEL EDIFICIO ( NO SE ENCUENTRA TECHADO NI CON PORTON )PRECIO DE VENTA $2,750,000 CADA OFICINA.Se entrega con acabados, pisos y muros terminados.ZONA RESIDENCIAL, HOTELERA Y COMERCIAL, CON TODOS LOS SERVICIOS, CALLES PAVIMENTADAS, PARQUES Y ESCUELAS EN LA ZONA, CERCA DE AV PRINCIPALES Y DEL BULEVAR. SIN PROBLEMAS DE INUNDACIONES.PASAN RUTAS DE CAMIONES QUE SE DIRIGEN HACIA ZONA CENTRO, SUR Y NORTE DE LA CIUDAD.Muy cerca de Plaza Americas, Plaza Andamar. Plaza Mocambo

Las Américas, Boca del Río
Oficina en venta
$2,184,000 MXN
Ref: NEX-6407
Lujosa oficina en venta ubicada en Edificio Corporativo de Primer nivel, adquiere estatus en la mejor y mas moderna zona de Veracruz. Torre 1519 es un edificio con una ubicación privilegiada una excelente opción de espacios para oficinas a la vanguardia en instalaciones y seguridad. Centro de negocios ubicado en la mejor zona corporativa, rodeada de centros comerciales, escuelas, restaurantes, parques. Libérate del estrés ven a trabajar con la tranquilidad que la vista al mar te puede dar, te ofrecemos la mejor oficina en el 9° piso de 111 m2. Torre 1519 es un edificio de 20 niveles, 4 pisos de estacionamiento, 4 elevadores 3 de ellos panorámicos, área de bar y terraza con vista a la bahía en su piso 20, recepción de primer nivel, excelente ubicación, accesos controlados, seguridad privada y circuito cerrado.Contáctame para agendar una cita y continúes con tus proyectos en zona de gran plusvalía.
NEXIMOINMOBILIARIADIGITAL