1 departamentos en venta en Roma

Roma, Monterrey
Departamento en venta
$3,975,000 MXN
Ref: NEX-34702
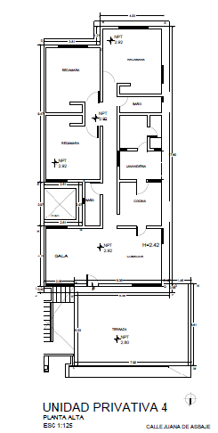
Dos departamentos para estrenar en ventaUbicados en la colonia Roma en Monterrey, N.L. muy cerca del Tecnológico de Monterrey.3 recámaras, 3 baños, sala-comedor, cocina, lavanderia y cuarto de servicio, terraza sin techar, un cajón de estacionamiento y portón electrico.Departamento 2 en Planta Baja:Metros de interior 132.92 m2Metros de exterior 53.66 m2 ( pasillo, patio central y patio del departamento en la parte de atrás).Estacionamiento 12.50 m2Área Común: 15.71 m2TOTAL METROS CUADRADOS 214.79 M2Departamento 4 en Planta AltaMetros de interior 135.01 m2Metros TERRAZA 40.68 m2Estacionamiento 12.50 m2Área Común: 13.12 m2TOTAL METROS CUADRADOS 201.31 M2No inlcuye: cocina, closets, ni climas, solo preparaciones y el sanitario y lavabo en baño de cuarto de servicio no incluye.Pisos ceramicos de muy buena calidad, en recámaras apariencia madera, sanitario y lavado en dos baños.Precio $ 3,975,000 con un cajón de estacionamiento.En caso de interesarte un segundo cajón, el costo es aparte.Entrega: Diciembre 2020Zona de alta plusvalia y su diseño te brindará mucha seguridad.La fachada aparenta ser una sola propiedad, pero el proyecto contará en el interior con 5 exclusivos departamentos.
NEXIMOINMOBILIARIADIGITAL