3 bodegas en venta en Quintana Roo

Alfredo V Bonfil, Cancún
Bodega en venta
$6,145,000 MXN
Ref: NEX-28705
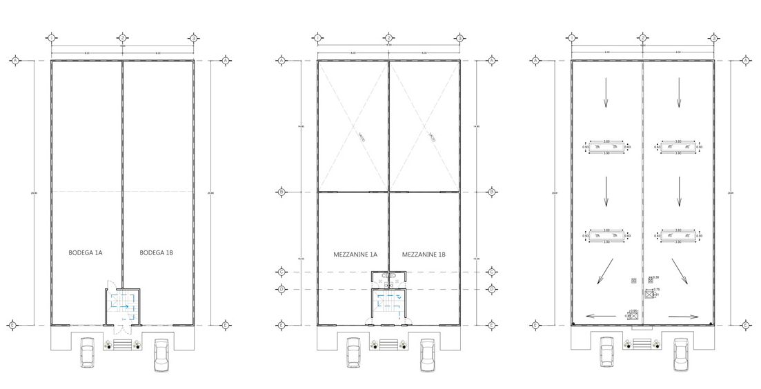
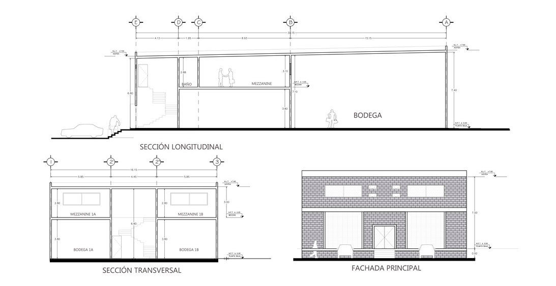
Venta de bodega amplia con oficinas en Cancún seguridad 24 hrs y control de temperatura.Características Principales(Especificaciones técnicas y cualitativas)Construcción vanguardista a estrenarUbicación estratégica. Aereopuerto, 5 minutos; Centro de Cancún, 14 minutos; Playa del Carmen, 35 minutos; Puerto Morelos, 15 minutos; acceso inmediato a Carretera Federal.Entradas independientes.Cancelería de aluminio con vidrio de 9mm tintex en fachada.Área de recepción y un baño general (con posibilidad de expandir)CCTV en patio de maniobras y puerta principal.Instalaciones subterráneas (eléctricas, telefónicas, pluviales e hidráulicas) Sistema de Agua Potable y descarga de aguas negras.Techos de concreto con aislamiento térmico.Diseño que optimiza y aprovecha la iluminación natural.Pisos de concreto.Cámara de basura general.Amplios andenes de carga y descarga.Accesos independientes para oficina y bodegas.UBICACIÓN PRIVILEGIADA OFICINAS + BODEGAS SEGURIDAD 24/7Bodegas + Oficina + ShowroomArmonía ideal entre tu espacio corporativo y operaciones.Seguridad 24/7Espacios resguardados los 365 días del año y acceso 24hrs.Máxima movilidadAmplio patio de maniobras de 40 mt2 de ancho.Bodegas Amplias8 mts de altura y sin columnas intermedias.Última tecnologíaSistema Novidesa® en losa. Reducción de temperatura hasta 4ºCAccesos IndependientesAcceso privado para propietarios.Protección anti-huracanesLosa de concreto y bodegas elevadas.Contáctanos ahora para mayor información por este medio o via telefónica

Ejidal, Solidaridad
Bodega en venta
$12,000,000 MXN
Ref: NEX-19645
Se vende bodega sobre la Av. Juárez con salida a la calle 2 norte.Tu posibilidad de negocio esta una de las avenidas principales de Playa del Carmen. Con potencial de negocio sobre una de las principales avenidas. Posibilidad de entrar camiones por la parte de la calle 2 norte. Si lo que buscas es solo guardar tus materiales o inventarios igualmente se presta para bodega para tu trabajo, es excelente para comenzar un negocio y poder estar en un lugar que dará posicionamiento en Playa del Carmen a tu negocio.Cuenta con alberca, baños en la parte de atrás. De gran tamaño, con todo su mantenimiento a día.Nosotros somos tu mejor opción.
NEXIMOINMOBILIARIADIGITAL

Alfredo V Bonfil, Cancún
Bodega en venta
$12,290,000 MXN
Ref: NEX-28707
Venta de Bodega amplia con oficina en Cancún seguridad 24 hrs y control de temperatura.Características Principales(Especificaciones técnicas y cualitativas)Construcción vanguardista a estrenarUbicación estratégica. Aereopuerto, 5 minutos; Centro de Cancún, 14 minutos; Playa del Carmen, 35 minutos; Puerto Morelos, 15 minutos; acceso inmediato a Carretera Federal.Entradas independientes.Cancelería de aluminio con vidrio de 9mm tintex en fachada.Área de recepción y un baño general (con posibilidad de expandir)CCTV en patio de maniobras y puerta principal.Instalaciones subterráneas (eléctricas, telefónicas, pluviales e hidráulicas) Sistema de Agua Potable y descarga de aguas negras.Techos de concreto con aislamiento térmico.Diseño que optimiza y aprovecha la iluminación natural.Pisos de concreto.Cámara de basura general.Amplios andenes de carga y descarga.Accesos independientes para oficina y bodegas.UBICACIÓN PRIVILEGIADA OFICINAS + BODEGAS SEGURIDAD 24/7Bodegas + Oficina + ShowroomArmonía ideal entre tu espacio corporativo y operaciones.Seguridad 24/7Espacios resguardados los 365 días del año y acceso 24hrs.Máxima movilidadAmplio patio de maniobras de 40 mt2 de ancho.Bodegas Amplias8 mts de altura y sin columnas intermedias.Última tecnologíaSistema Novidesa® en losa. Reducción de temperatura hasta 4ºCAccesos IndependientesAcceso privado para propietarios.Protección anti-huracanesLosa de concreto y bodegas elevadas.Contáctanos ahora para mayor información por este medio o via telefónica